CHELTENHAM CONTEMPORARY ZINC EXTENSION

LOCATION: CHELTENHAM

PROJECT INFORMATION

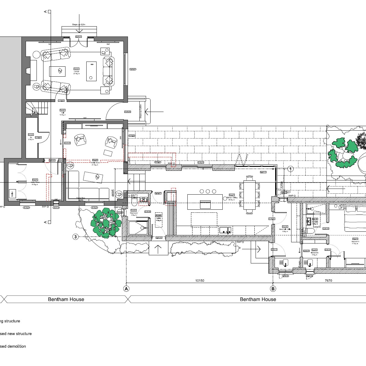
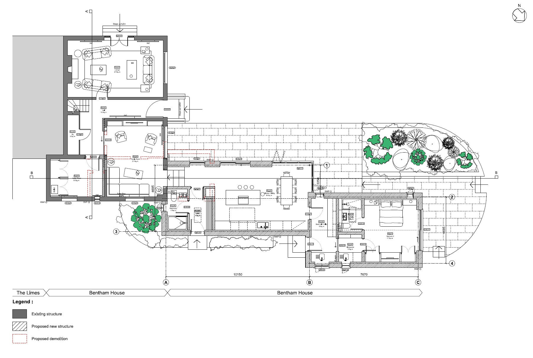
A Georgian house in Cheltenham requiring remodelling and extension to make the property work for a family.

A contemporary zinc clad extension provides new open plan kitchen and living spaces, with a separate bedroom annexe.

Large format glazing, including a corner bi-fold door provides panoramic views to the attractive gardens.

Internally a vaulted ceiling with exposed rafters and conservation rooflights creates a dramatic entertaining space flooded with natural light.

SCROLL TO PROJECT GALLERY

PROJECT GALLERY

image
image
image
image